Center Gomme
DETTAGLIO PROGETTO
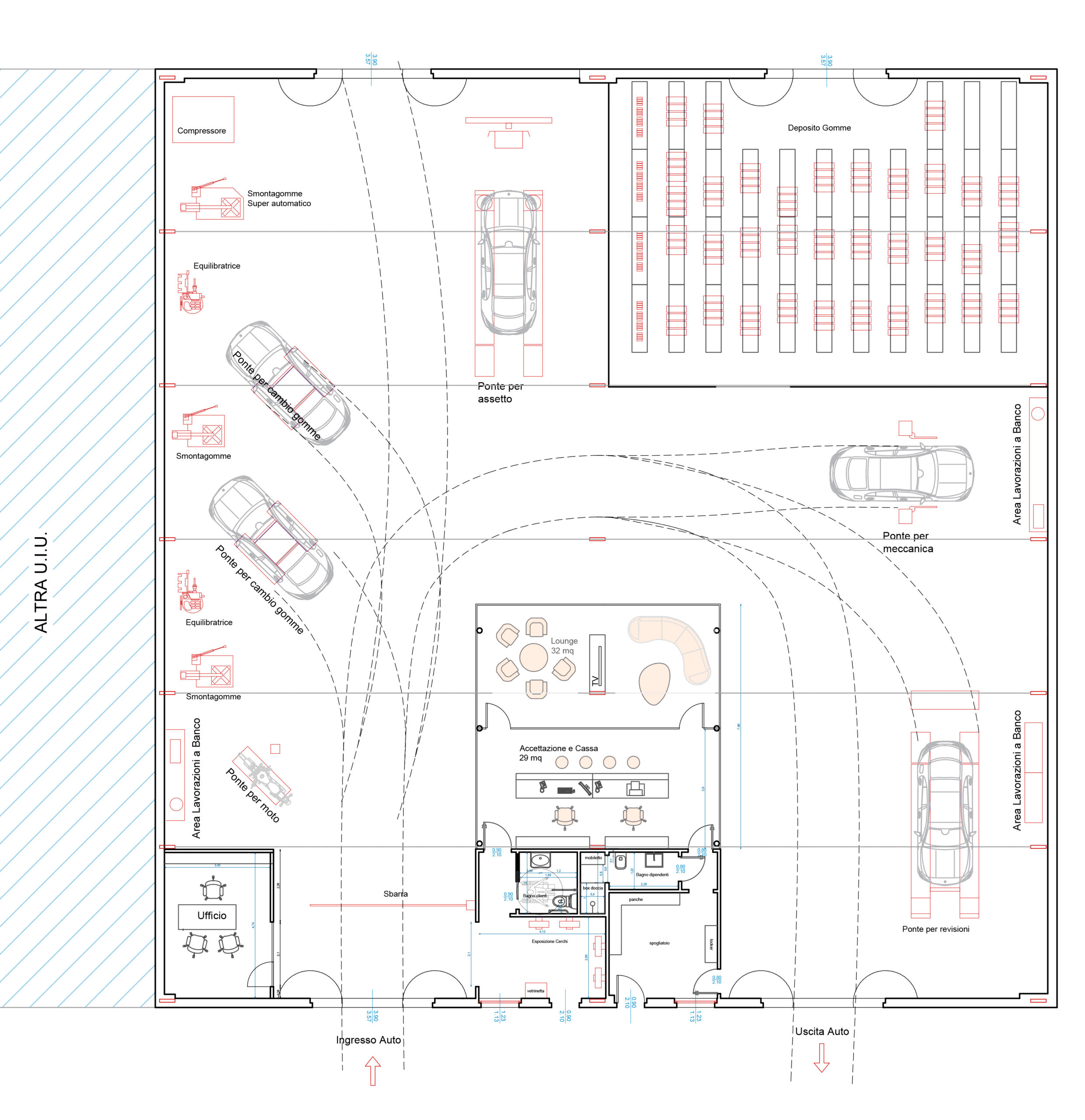
Ristrutturare un capannone industriale per destinarlo alla nuova officina di cambio gomme/meccanica “nuovo Center Gomme” ci è sembrato da subito un progetto stimolante.
Siamo partiti da quello che davvero è l’elemento essenziale di tale attività, ovvero lo pneumatico con il suo disegno tipico del battistrada.
Ubicato a Montesilvano, il nuovo edificio si configura all’esterno grazie a un sistema di pannelli in lamiera grecata, usati solitamente per realizzare solai collaboranti, qui adattati alla loro funzione di rivestimento in facciata con posa a spina di pesce a imitazione dei disegni del battistrada.
All’interno prende forma un volume centrale vetrato la cui funzione è quella di cabina di osservazione sull’officina circostante.
L’organizzazione funzionale privilegia fluidità dei percorsi e chiarezza distributiva, garantendo una fruizione intuitiva degli spazi dedicati a servizi, accoglienza e socialità. Le superfici vetrate amplificano la percezione degli ambienti lavorativi, mentre ambienti come il deposito gomme o il bagno dei clienti sono definiti da volumetrie pure e color block . Il progetto si configura così come un sistema integrato, dove architettura e infrastruttura lavorativa diventano strumenti per valorizzare l’esperienza complessiva, definendo un ambiente contemporaneo e fortemente radicato nel contesto industriale dell’area.

