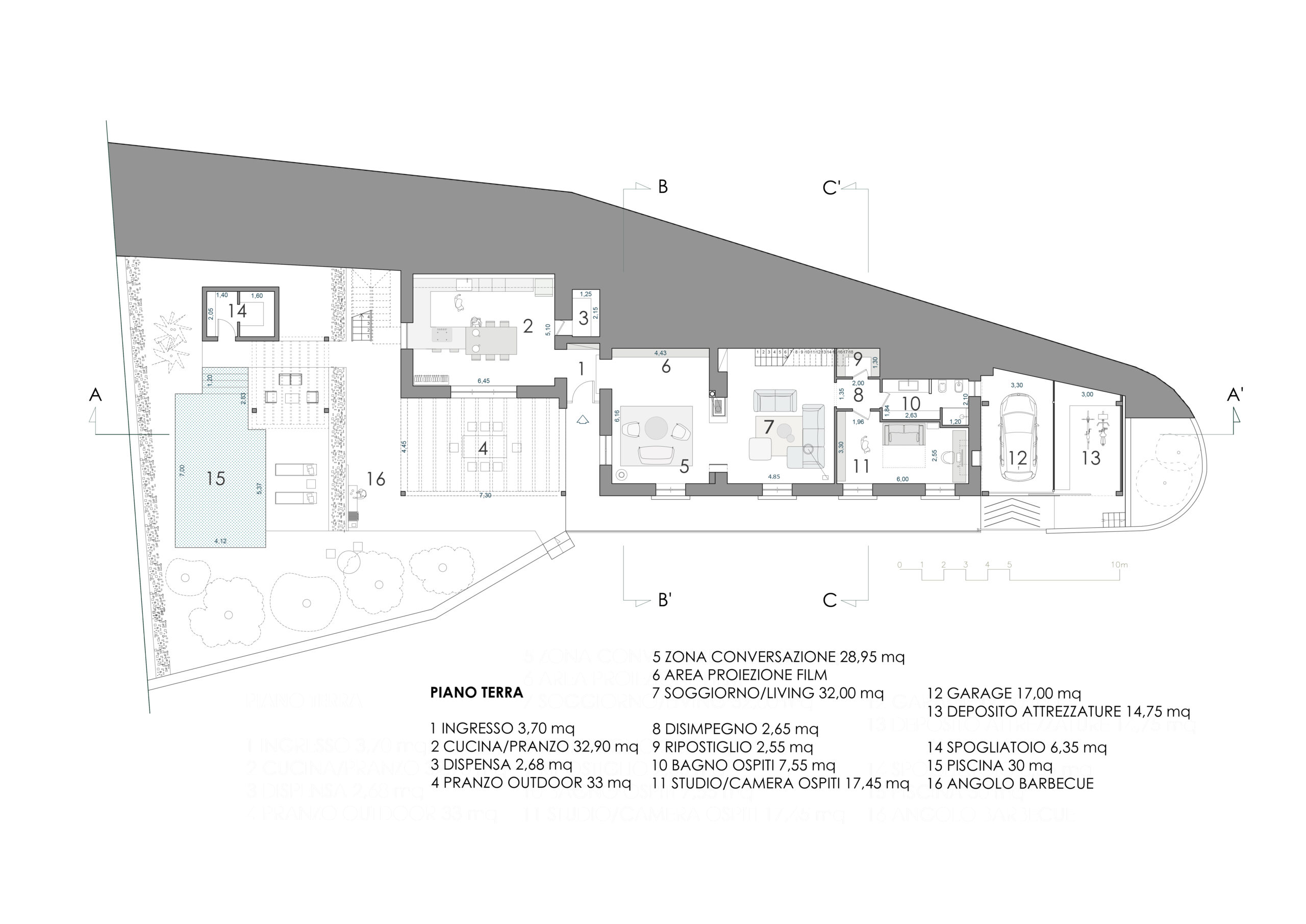
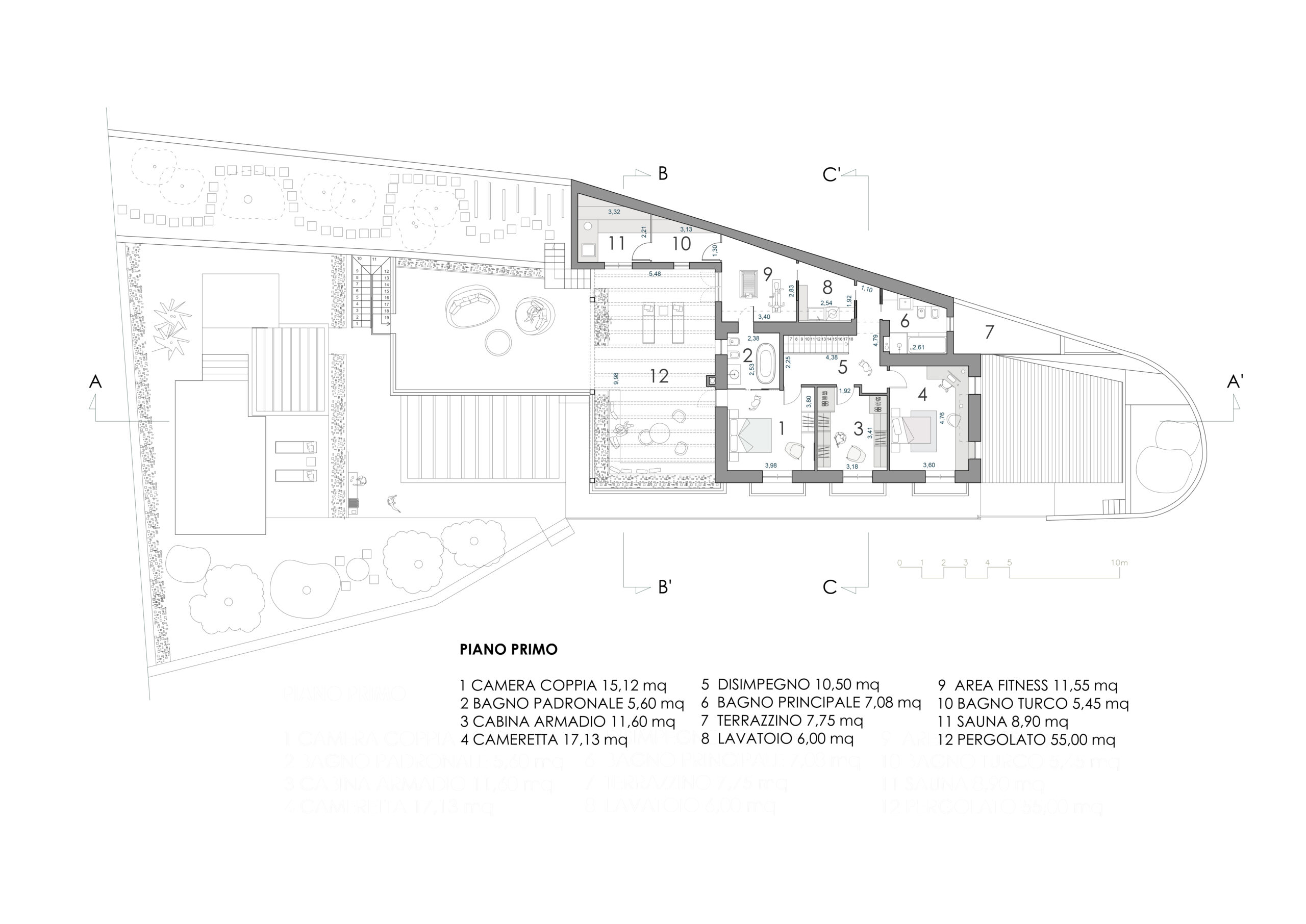
Villa a Pozzuoli
DETTAGLIO PROGETTO
Siamo a Pozzuoli, i nostri clienti esteri ci contattano per il progetto di ristrutturazione della villa degli anni ’70 che hanno appena comprato.
La vista sul golfo e la vegetazione circostante hanno ispirato l’uso di questa carta da parati sulle pareti dello spazio living.
Esternamente abbiamo previsto la chiusura della merlatura delle balaustre mediante creazione di un muretto continuo per regolarizzare il parapetto e il cornicione.
Il posizionamento di una pergola bioclimatica nell’area esterna davanti alla cucina e la sostituzione della tettoia a falda adibita a parcheggio con un’altra equivalente ma a copertura piana donano continuità alla lettura del prospetto.
Tutto confluisce in un design moderno e minimal, per lasciare alla natura circostante il ruolo da protagonista.
